Met een eigen account kun je panden volgen, opslaan als favoriet, je zoekprofiel opslaan en jouw eigen notities bij een huis maken.
Algemeen
Royale geschakelde 5-kamer eengezinswoning met inpandige garage gelegen in de wijk “De Lookertuyn” in Den Hoorn met een zonnige achtertuin op het zuiden, grenzend aan het water. 
Het dorpse karakter van Den Hoorn met het historisch centrum van Delft en het NS-station op 10 minuten fietsafstand, maakt het aangenaam wonen aan de Juttepeer. Scholen, speelvoorzieningen, winkels, sportvereniginge... Meer informatie
Het dorpse karakter van Den Hoorn met het historisch centrum van Delft en het NS-station op 10 minuten fietsafstand, maakt het aangenaam wonen aan de Juttepeer. Scholen, speelvoorzieningen, winkels, sportvereniginge... Meer informatie
| Kenmerken | |
|---|---|
| Alle kenmerken | |
| Type object | Woonhuis, eengezinswoning, geschakelde woning | 
| Bouwperiode | 2009 | 
| Status | Verkocht | 
| Aangeboden sinds | Vrijdag 9 mei 2025 | 
Kenmerken
| Overdracht | |
|---|---|
| Referentienummer | 00203 | 
| Vraagprijs | € 895.000,- k.k. | 
| Elektra | € 60,- | 
| Gas | € 80,- | 
| Water | € 24,- | 
| Inrichting | Ja | 
| Inrichting | Gestoffeerd | 
| Status | Verkocht | 
| Aanvaarding | In overleg | 
| Aangeboden sinds | Vrijdag 9 mei 2025 | 
| Laatste wijziging | Zaterdag 5 juli 2025 | 
| Bouw | |
|---|---|
| Type object | Woonhuis, eengezinswoning, geschakelde woning | 
| Soort bouw | Bestaande bouw | 
| Bouwperiode | 2009 | 
| Dakbedekking | Dakpannen | 
| Type dak | Zadeldak | 
| Keurmerken | Beveiliging | 
| Isolatievormen | Volledig geïsoleerd | 
| Oppervlaktes en inhoud | |
|---|---|
| Perceeloppervlakte | 242 m² | 
| Woonoppervlakte | 199 m² | 
| Woonkameroppervlakte | 79,07 m² | 
| Keukenoppervlakte | 12,7 m² | 
| Inhoud | 820 m³ | 
| Oppervlakte overige inpandige ruimten | 27,4 m² | 
| Indeling | |
|---|---|
| Aantal bouwlagen | 3 | 
| Aantal kamers | 5 (waarvan 4 slaapkamers) | 
| Aantal badkamers | 1 (en 3 aparte toiletten) | 
| Locatie | |
|---|---|
| Ligging | Aan rustige weg Aan water Beschutte ligging Dichtbij openbaar vervoer Nabij snelweg | 
| Tuin | |
|---|---|
| Type | Achtertuin | 
| Hoofdtuin | Ja | 
| Oriëntering | Zuiden | 
| Staat | Normaal | 
| Tuin 2 - Type | Achtertuin | 
| Tuin 2 - Oriëntering | Noorden | 
| Tuin 2 - Staat | Normaal | 
| Energieverbruik | |
|---|---|
| Energielabel | A+ | 
| CV ketel | |
|---|---|
| CV ketel | Nefit | 
| Warmtebron | Gas | 
| Bouwjaar | 2023 | 
| Combiketel | Ja | 
| Eigendom | Eigendom | 
| Uitrusting | |
|---|---|
| Aantal parkeerplaatsen | 2 | 
| Aantal overdekte parkeerplaatsen | 1 | 
| Warm water | CV-ketel | 
| Verwarmingssysteem | Centrale verwarming Vloerverwarming (gedeeltelijk) Warmterecuperatiesysteem | 
| Ventilatie methode | Balansventilatie Mechanische ventilatie Natuurlijke ventilatie | 
| Keukenvoorzieningen | Inbouwapparatuur | 
| Badkamervoorzieningen | Dubbele wastafel Inloopdouche Wastafelmeubel | 
| Parkeergelegenheid | Aangebouwde stenen garage | 
| Heeft een alarm | Ja | 
| Glasvezelaansluiting aanwezig | Ja | 
| Tuin aanwezig | Ja | 
| Heeft een garage | Ja | 
| Heeft een dakraam | Ja | 
| Heeft een schuifpui | Ja | 
| Heeft zonwering | Ja | 
| Heeft zonnepanelen | Ja | 
| Heeft ventilatie | Ja | 
| Kadastrale gegevens | |
|---|---|
| Kadastrale aanduiding | Schipluiden H 2772 | 
| Perceeloppervlakte | 38 m² | 
| Omvang | Geheel perceel | 
| Eigendomsituatie | Eigen grond | 
| Kadastrale aanduiding | Schipluiden H 2763 | 
| Perceeloppervlakte | 204 m² | 
| Omvang | Geheel perceel | 
| Eigendomsituatie | Eigen grond | 
Beschrijving
           Royale geschakelde 5-kamer eengezinswoning met inpandige garage gelegen in de wijk “De Lookertuyn” in Den Hoorn met een zonnige achtertuin op het zuiden, grenzend aan het water. 
Het dorpse karakter van Den Hoorn met het historisch centrum van Delft en het NS-station op 10 minuten fietsafstand, maakt het aangenaam wonen aan de Juttepeer. Scholen, speelvoorzieningen, winkels, sportverenigingen, bibliotheek, recreatie (golfbaan, zwembad, manege etc.), recreatiegebied Midden-Delfland en uitvalswegen naar de A4 zijn op korte afstand.
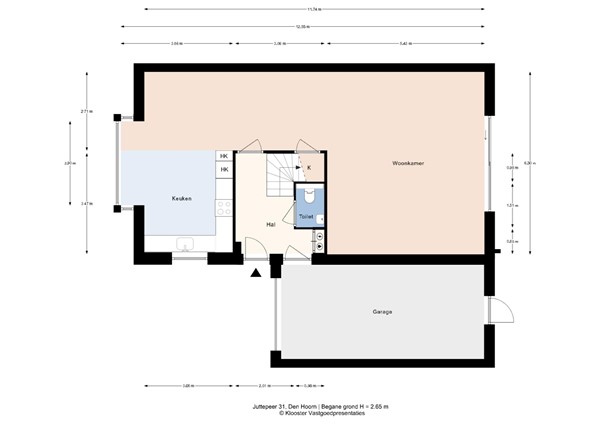
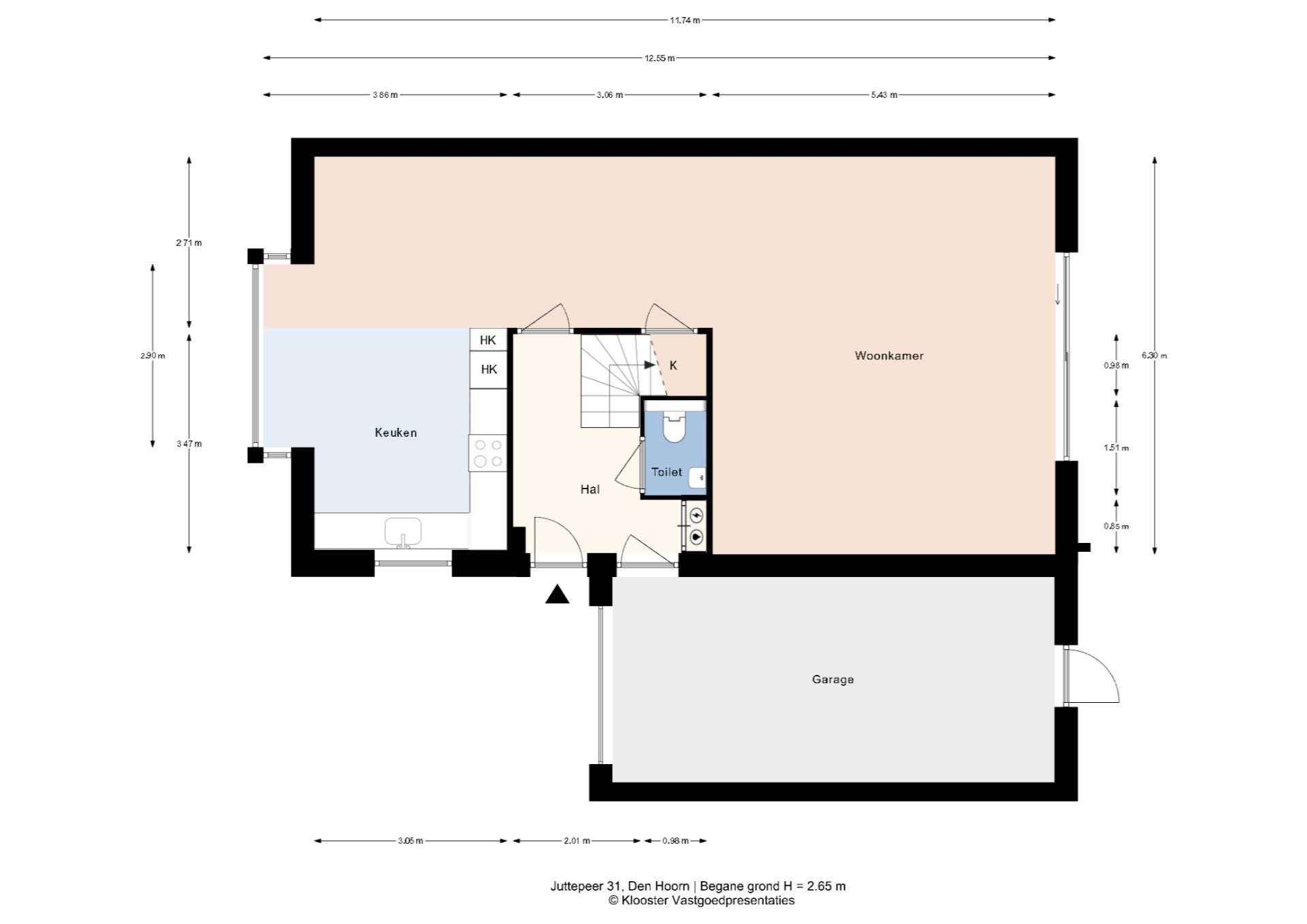
Indeling:
Begane grond: Voortuin met eigen parkeerplaats en laadstation voor de elektrische auto Toegang tot garage door middel van een elektrisch bedienbare sectionaal deur. Entree in een royale hal met meterkast, modern toilet met hangende closet en fonteintje, toegang tot de garage en trappenhuis. Ruime en lichte woonkamer aan achterzijde woning met vloerverwarming en epoxy woongrind op de vloer. Aan de achterzijde van de woning met schuifpui naar de achtertuin op het zuiden met zonwering en hardhouten vlonder aan het water. Aan de voorzijde treft u de open Grando keuken met granito aanrechtblad en diversen inbouwapparatuur: combi-oven, koelkast, inductie kookplaat, afzuigkap, vaatwasser en praktische Quooker voor de fervente theedrinkers. Erker in keuken met radiator als bijverwarming en ruim uitzicht over de straat. De garage heeft vaste kasten en geeft eveneens toegang tot de kindvriendelijke achtertuin en tweede terras met elektrisch bedienbare overkapping.
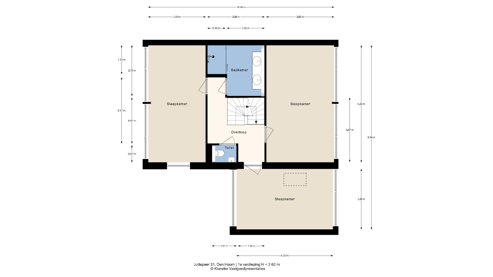
1e Verdieping: Laminaatvloeren op overloop en in slaapkamers. Toiletruimte met hangende closet en fonteintje en toegang tot alle ruimtes. Aan de tuinzijde de hoofdslaapkamer met zonwering en een tweede slaapkamer boven garage met venster aan voor- en achterzijde. Moderne badkamer met dubbel wastafelmeubel, inloopdouche, verwarmde spiegel en design radiator. Slaap/werkkamer aan de voorzijde van de woning.
2e Verdieping: Slaapruimte/hobbyruimte met wastafel en laminaatvloer. 6 dakvensters in schuine dak met Velux zonwering en muskietengaas. Stookruimte met Nefit C.V.-ketel uit 2023 en WTW-installatie. Toiletruimte met hangend closet. Separate bergruimte en veel bergruimte achter knieschotten. Op het schuine dak gericht op het zuiden in totaal 19 zonnepanelen, waarvan 10 stuks uit het jaar 2017 en 9 stuks uit het jaar 2021.
Kenmerken:
- Bouwjaar 2009
- Gebruiksoppervlakte 199m2
- Overig inpandige ruimte (garage, bergruimte) 27,40m2
- Perceeloppervlakte 242 m2
- Inhoud 820m3
- Zonnige achtertuin op het zuiden met twee terrassen en vlonder aan water
- Elektrisch bedienbare zonwering op begane grond aan achtergevel
- Elektrisch bedienbare terrasoverkapping in tuin
- Warmte Terug Win (WTW) installatie
- 19 zonnepanelen
- Laadpaal voor elektrische auto
- Energielabel A+
    Het dorpse karakter van Den Hoorn met het historisch centrum van Delft en het NS-station op 10 minuten fietsafstand, maakt het aangenaam wonen aan de Juttepeer. Scholen, speelvoorzieningen, winkels, sportverenigingen, bibliotheek, recreatie (golfbaan, zwembad, manege etc.), recreatiegebied Midden-Delfland en uitvalswegen naar de A4 zijn op korte afstand.
Indeling:
Begane grond: Voortuin met eigen parkeerplaats en laadstation voor de elektrische auto Toegang tot garage door middel van een elektrisch bedienbare sectionaal deur. Entree in een royale hal met meterkast, modern toilet met hangende closet en fonteintje, toegang tot de garage en trappenhuis. Ruime en lichte woonkamer aan achterzijde woning met vloerverwarming en epoxy woongrind op de vloer. Aan de achterzijde van de woning met schuifpui naar de achtertuin op het zuiden met zonwering en hardhouten vlonder aan het water. Aan de voorzijde treft u de open Grando keuken met granito aanrechtblad en diversen inbouwapparatuur: combi-oven, koelkast, inductie kookplaat, afzuigkap, vaatwasser en praktische Quooker voor de fervente theedrinkers. Erker in keuken met radiator als bijverwarming en ruim uitzicht over de straat. De garage heeft vaste kasten en geeft eveneens toegang tot de kindvriendelijke achtertuin en tweede terras met elektrisch bedienbare overkapping.
1e Verdieping: Laminaatvloeren op overloop en in slaapkamers. Toiletruimte met hangende closet en fonteintje en toegang tot alle ruimtes. Aan de tuinzijde de hoofdslaapkamer met zonwering en een tweede slaapkamer boven garage met venster aan voor- en achterzijde. Moderne badkamer met dubbel wastafelmeubel, inloopdouche, verwarmde spiegel en design radiator. Slaap/werkkamer aan de voorzijde van de woning.
2e Verdieping: Slaapruimte/hobbyruimte met wastafel en laminaatvloer. 6 dakvensters in schuine dak met Velux zonwering en muskietengaas. Stookruimte met Nefit C.V.-ketel uit 2023 en WTW-installatie. Toiletruimte met hangend closet. Separate bergruimte en veel bergruimte achter knieschotten. Op het schuine dak gericht op het zuiden in totaal 19 zonnepanelen, waarvan 10 stuks uit het jaar 2017 en 9 stuks uit het jaar 2021.
Kenmerken:
- Bouwjaar 2009
- Gebruiksoppervlakte 199m2
- Overig inpandige ruimte (garage, bergruimte) 27,40m2
- Perceeloppervlakte 242 m2
- Inhoud 820m3
- Zonnige achtertuin op het zuiden met twee terrassen en vlonder aan water
- Elektrisch bedienbare zonwering op begane grond aan achtergevel
- Elektrisch bedienbare terrasoverkapping in tuin
- Warmte Terug Win (WTW) installatie
- 19 zonnepanelen
- Laadpaal voor elektrische auto
- Energielabel A+
 
                                         
                                         
                                         
                                         
                                         
                                         
                                         
                                         
                                         
                                         
                                         
                                         
                                         
                                         
                                         
                                         
                                         
                                         
                                         
                                         
                                         
                                         
                                         
                                         
                                         
                                         
                                         
                                         
                                         
                                         
                                         
                                         
                                         
                                         
                                         
                                         
                                         
                                         
                                         
                                         
                                         
                                         
                                         
                                         
                                         
                                         
                                         
                                         
                                         
                                         
                                         
                                         
                                         
                                         
                                         
                                         
                                         
                                         
                                         
                                 
            
         
            
         
            
         
            
         
            
         
            
         
            
         
            
         
            
         
            
         
            
         
            
         
            
         
            
         
            
         
            
         
            
         
            
         
            
         
            
         
            
         
            
         
            
         
            
         
            
         
            
         
            
         
            
         
            
         
            
         
            
         
            
         
            
         
            
         
            
         
            
         
            
         
            
         
            
         
            
         
            
         
            
         
            
         
            
         
            
         
            
         
            
         
            
         
            
         
            
         
            
         
            
         
            
         
            
         
            
         
            
         
            
         
            
         
            
         
            
         
                
             
                
             
                
             
                
             
                
             
                
             
                
             
                
            