Met een eigen account kun je panden volgen, opslaan als favoriet, je zoekprofiel opslaan en jouw eigen notities bij een huis maken.
Algemeen
Buizerdlaan 127 – Licht, modern en rustig wonen aan de rand van Delft
Op zoek naar een instapklaar appartement met een heerlijk vrij uitzicht, moderne afwerking én een prachtige ligging aan het groen? Dan is Buizerdlaan 127 precies wat u zoekt! Deze verzorgde 3-kamerwoning (ca. 76 m²) biedt comfort, licht en rust – met het Abtswoudsebos letterlijk als achtertuin.
___________________________... Meer informatie
Op zoek naar een instapklaar appartement met een heerlijk vrij uitzicht, moderne afwerking én een prachtige ligging aan het groen? Dan is Buizerdlaan 127 precies wat u zoekt! Deze verzorgde 3-kamerwoning (ca. 76 m²) biedt comfort, licht en rust – met het Abtswoudsebos letterlijk als achtertuin.
___________________________... Meer informatie
| Kenmerken | |
|---|---|
| Alle kenmerken | |
| Type object | Appartement, portiekwoning |
| Bouwperiode | 1988 |
| Status | Verkocht |
| Aangeboden sinds | Donderdag 30 oktober 2025 |
Kenmerken
| Overdracht | |
|---|---|
| Referentienummer | 00222 |
| Vraagprijs | € 395.000,- k.k. |
| Servicekosten | € 220,- |
| Elektra | € 76,- |
| Gas | € 100,- |
| Water | € 20,- |
| Status | Verkocht |
| Aanvaarding | In overleg |
| Aangeboden sinds | Donderdag 30 oktober 2025 |
| Laatste wijziging | Vrijdag 21 november 2025 |
| Bouw | |
|---|---|
| Type object | Appartement, portiekwoning |
| Woonlaag | 6e woonlaag |
| Soort bouw | Bestaande bouw |
| Toegankelijkheid | Mindervaliden |
| Bouwperiode | 1988 |
| Dakbedekking | Bitumen |
| Type dak | Platdak |
| Isolatievormen | Volledig geïsoleerd |
| Oppervlaktes en inhoud | |
|---|---|
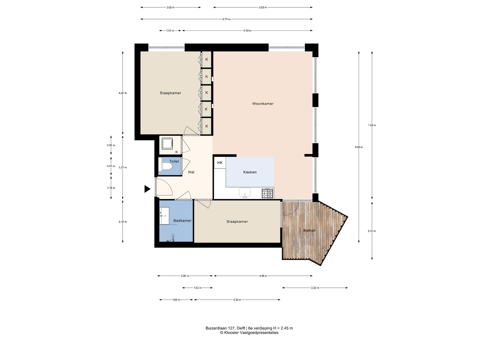
| Woonoppervlakte | 75,6 m² |
| Woonkameroppervlakte | 37,1 m² |
| Keukenoppervlakte | 6 m² |
| Inhoud | 235 m³ |
| Oppervlakte externe bergruimte | 7,7 m² |
| Oppervlakte gebouwgebonden buitenruimte | 8 m² |
| Balkonoppervlakte | 9,43 m² |
| Indeling | |
|---|---|
| Aantal bouwlagen | 1 |
| Aantal kamers | 3 (waarvan 2 slaapkamers) |
| Aantal badkamers | 1 (en 1 apart toilet) |
| Locatie | |
|---|---|
| Ligging | Aan rustige weg In woonwijk Vrij uitzicht |
| Energieverbruik | |
|---|---|
| Energielabel | C |
| CV ketel | |
|---|---|
| CV ketel | Remeha |
| Warmtebron | Gas |
| Bouwjaar | 2016 |
| Combiketel | Ja |
| Eigendom | Eigendom |
| Uitrusting | |
|---|---|
| Warm water | CV-ketel |
| Verwarmingssysteem | Airconditioning Centrale verwarming |
| Ventilatie methode | Mechanische ventilatie Natuurlijke ventilatie |
| Badkamervoorzieningen | Inloopdouche Wastafelmeubel |
| Heeft airco | Ja |
| Heeft een balkon | Ja |
| Glasvezelaansluiting aanwezig | Ja |
| Beschikt over een internetverbinding | Ja |
| Heeft schuur/berging | Ja |
| Heeft ventilatie | Ja |
| Vereniging van Eigenaren | |
|---|---|
| Ingeschreven bij de KvK | Ja |
| Jaarlijkse vergadering | Ja |
| Periodieke bijdrage | Ja |
| Reservefonds | Ja |
| Meer jaren onderhoudsplan | Ja |
| Onderhoudsverwachting | Ja |
| Opstal verzekering | Ja |
| Kadastrale gegevens | |
|---|---|
| Kadastrale aanduiding | Delft R 4462 |
| Omvang | Appartementsrecht of complex |
| Eigendomsituatie | Erfpacht |
| Indexnummer | 22 |
Beschrijving
Buizerdlaan 127 – Licht, modern en rustig wonen aan de rand van Delft
Op zoek naar een instapklaar appartement met een heerlijk vrij uitzicht, moderne afwerking én een prachtige ligging aan het groen? Dan is Buizerdlaan 127 precies wat u zoekt! Deze verzorgde 3-kamerwoning (ca. 76 m²) biedt comfort, licht en rust – met het Abtswoudsebos letterlijk als achtertuin.
________________________________________
Indeling
Begane grond:
Keurig portiek met intercom, bellentableau en brievenbussen. In de onderbouw bevindt zich een ruime inpandige berging van ca. 8 m² – ideaal voor fietsen of extra opslag.
6e (bovenste) etage:
Via een portiek voor slechts vier woningen bereikt u de entree van dit lichte appartement.
De hal/gang geeft toegang tot alle vertrekken. In de gehele woning ligt een strakke onderhoudsvriendelijke PVC-vloer, wat zorgt voor een moderne uitstraling.
De lichte woonkamer met open keuken vormt het hart van het huis. Vanuit hier heeft u toegang tot het balkon op het oosten – een fijne plek voor uw ochtendkoffie met uitzicht over de groene omgeving.
De moderne keuken is voorzien van een granito aanrechtblad, inductiekookplaat, afzuigkap, vaatwasser, combimagnetron/oven en koel-vriescombinatie.
De woning beschikt over twee slaapkamers: een ruime master bedroom en een slaap-/werkkamer met airconditioning – ideaal voor thuiswerken op warme zomerdagen of als lokale verwarming op koude winterdagen.
De badkamer (2017) is modern afgewerkt met een inloopdouche, wastafelmeubel, tegelvloer, betegelde wanden en inbouw ledverlichting.
Het separate toilet (2017) is uitgevoerd met een hangend closet, pvc-vloer, betegelde wanden.
De gehele woning is voorzien van vloerverwarming en LED-inbouwverlichting.
Daarnaast is er een praktische stookruimte met Remeha cv-ketel (2016), ventilatie box en aansluiting voor wasmachine en droger.
________________________________________
Bijzonderheden
• Bouwjaar: 1988
• Woonoppervlakte: ca. 76 m²
• Balkon: ca. 8 m², oostelijk gelegen
• Inpandige berging: ca. 8 m²
• Energielabel C
• Nagenoeg volledig kunststof kozijnen met HR++ glas (balkonzijde: hardhout met HR++ glas)
• Actieve VVE, bijdrage € 220,00 per maand.
• Het recht van erfpacht is eeuwigdurend gevestigd en de verschuldigde canon is eeuwigdurend afgekocht.
• Gratis parkeren op openbaar terrein
• Tramlijn 1 op korte loopafstand (directe verbinding met Delft centrum en Den Haag)
• Bushalte op minder dan 5 minuten lopen (bus 64 naar Delft Station), en station Delft Campus op 5 minuten fietsen.
• Rustige ligging direct aan het Abtswoudsebos – ideaal voor wandelen, fietsen en ontspannen in de natuur
________________________________________
Kortom:
Buizerdlaan 127 biedt een heerlijke mix van comfort, modern woonplezier en rust, met alle voorzieningen binnen handbereik. Een instapklaar appartement op een toplocatie aan de rand van Delft!
Op zoek naar een instapklaar appartement met een heerlijk vrij uitzicht, moderne afwerking én een prachtige ligging aan het groen? Dan is Buizerdlaan 127 precies wat u zoekt! Deze verzorgde 3-kamerwoning (ca. 76 m²) biedt comfort, licht en rust – met het Abtswoudsebos letterlijk als achtertuin.
________________________________________
Indeling
Begane grond:
Keurig portiek met intercom, bellentableau en brievenbussen. In de onderbouw bevindt zich een ruime inpandige berging van ca. 8 m² – ideaal voor fietsen of extra opslag.
6e (bovenste) etage:
Via een portiek voor slechts vier woningen bereikt u de entree van dit lichte appartement.
De hal/gang geeft toegang tot alle vertrekken. In de gehele woning ligt een strakke onderhoudsvriendelijke PVC-vloer, wat zorgt voor een moderne uitstraling.
De lichte woonkamer met open keuken vormt het hart van het huis. Vanuit hier heeft u toegang tot het balkon op het oosten – een fijne plek voor uw ochtendkoffie met uitzicht over de groene omgeving.
De moderne keuken is voorzien van een granito aanrechtblad, inductiekookplaat, afzuigkap, vaatwasser, combimagnetron/oven en koel-vriescombinatie.
De woning beschikt over twee slaapkamers: een ruime master bedroom en een slaap-/werkkamer met airconditioning – ideaal voor thuiswerken op warme zomerdagen of als lokale verwarming op koude winterdagen.
De badkamer (2017) is modern afgewerkt met een inloopdouche, wastafelmeubel, tegelvloer, betegelde wanden en inbouw ledverlichting.
Het separate toilet (2017) is uitgevoerd met een hangend closet, pvc-vloer, betegelde wanden.
De gehele woning is voorzien van vloerverwarming en LED-inbouwverlichting.
Daarnaast is er een praktische stookruimte met Remeha cv-ketel (2016), ventilatie box en aansluiting voor wasmachine en droger.
________________________________________
Bijzonderheden
• Bouwjaar: 1988
• Woonoppervlakte: ca. 76 m²
• Balkon: ca. 8 m², oostelijk gelegen
• Inpandige berging: ca. 8 m²
• Energielabel C
• Nagenoeg volledig kunststof kozijnen met HR++ glas (balkonzijde: hardhout met HR++ glas)
• Actieve VVE, bijdrage € 220,00 per maand.
• Het recht van erfpacht is eeuwigdurend gevestigd en de verschuldigde canon is eeuwigdurend afgekocht.
• Gratis parkeren op openbaar terrein
• Tramlijn 1 op korte loopafstand (directe verbinding met Delft centrum en Den Haag)
• Bushalte op minder dan 5 minuten lopen (bus 64 naar Delft Station), en station Delft Campus op 5 minuten fietsen.
• Rustige ligging direct aan het Abtswoudsebos – ideaal voor wandelen, fietsen en ontspannen in de natuur
________________________________________
Kortom:
Buizerdlaan 127 biedt een heerlijke mix van comfort, modern woonplezier en rust, met alle voorzieningen binnen handbereik. Een instapklaar appartement op een toplocatie aan de rand van Delft!