Met een eigen account kun je panden volgen, opslaan als favoriet, je zoekprofiel opslaan en jouw eigen notities bij een huis maken.
Algemeen
Ruime gezinswoning met uitzonderlijk groot perceel en groene tuinen.
Aan een rustig hofje in Delft ligt deze verrassend ruime en goed onderhouden woning met een zeer royaal perceel, mede dankzij de voortuin met stenen berging, en een zonnige achtertuin.
De tuin is een waar paradijs voor tuinliefhebbers en gezinnen. Hier geniet u van privacy, groen en ruimte – iets wat zeldzaam is op deze... Meer informatie
Aan een rustig hofje in Delft ligt deze verrassend ruime en goed onderhouden woning met een zeer royaal perceel, mede dankzij de voortuin met stenen berging, en een zonnige achtertuin.
De tuin is een waar paradijs voor tuinliefhebbers en gezinnen. Hier geniet u van privacy, groen en ruimte – iets wat zeldzaam is op deze... Meer informatie
| Kenmerken | |
|---|---|
| Alle kenmerken | |
| Type object | Woonhuis, eengezinswoning, hoekwoning |
| Bouwperiode | 1980 |
| Status | Verkocht |
| Aangeboden sinds | Woensdag 31 december 2025 |
Kenmerken
| Overdracht | |
|---|---|
| Referentienummer | 00227 |
| Vraagprijs | € 475.000,- k.k. |
| Elektra | € 60,- |
| Gas | € 55,- |
| Water | € 15,- |
| Status | Verkocht |
| Aanvaarding | In overleg |
| Aangeboden sinds | Woensdag 31 december 2025 |
| Laatste wijziging | Woensdag 25 maart 2026 |
| Bouw | |
|---|---|
| Type object | Woonhuis, eengezinswoning, hoekwoning |
| Soort bouw | Bestaande bouw |
| Bouwperiode | 1980 |
| Dakbedekking | Dakpannen |
| Type dak | Lessenaarsdak |
| Isolatievormen | Dakisolatie Dubbel glas Muurisolatie |
| Oppervlaktes en inhoud | |
|---|---|
| Perceeloppervlakte | 137 m² |
| Woonoppervlakte | 95,9 m² |
| Woonkameroppervlakte | 22,91 m² |
| Keukenoppervlakte | 13,75 m² |
| Inhoud | 380 m³ |
| Oppervlakte overige inpandige ruimten | 0,5 m² |
| Oppervlakte externe bergruimte | 6,1 m² |
| Indeling | |
|---|---|
| Aantal bouwlagen | 3 |
| Aantal kamers | 4 (waarvan 3 slaapkamers) |
| Aantal badkamers | 1 (en 1 apart toilet) |
| Locatie | |
|---|---|
| Ligging | Aan rustige weg Aan water Beschutte ligging Dichtbij openbaar vervoer In woonwijk Nabij school |
| Tuin | |
|---|---|
| Type | Voortuin |
| Oriëntering | Zuid-west |
| Staat | Prachtig aangelegd |
| Tuin 2 - Type | Zijtuin |
| Tuin 2 - Oriëntering | Zuidoost |
| Tuin 2 - Staat | Prachtig aangelegd |
| Tuin 3 - Type | Achtertuin |
| Tuin 3 - Hoofdtuin | Ja |
| Tuin 3 - Oriëntering | Noord-oost |
| Tuin 3 - Heeft een achterom | Ja |
| Tuin 3 - Staat | Prachtig aangelegd |
| Energieverbruik | |
|---|---|
| Energielabel | C |
| CV ketel | |
|---|---|
| CV ketel | Remeha |
| Warmtebron | Gas |
| Bouwjaar | 2008 |
| Combiketel | Ja |
| Eigendom | Eigendom |
| Uitrusting | |
|---|---|
| Warm water | CV-ketel |
| Verwarmingssysteem | Centrale verwarming Houtkachel |
| Ventilatie methode | Mechanische ventilatie Natuurlijke ventilatie |
| Keukenvoorzieningen | Inbouwapparatuur |
| Tuin aanwezig | Ja |
| Beschikt over een internetverbinding | Ja |
| Heeft schuur/berging | Ja |
| Heeft ventilatie | Ja |
| Kadastrale gegevens | |
|---|---|
| Kadastrale aanduiding | Delft R 3606 |
| Perceeloppervlakte | 137 m² |
| Eigendomsituatie | Eigen grond |
Beschrijving
Ruime gezinswoning met uitzonderlijk groot perceel en groene tuinen.
Aan een rustig hofje in Delft ligt deze verrassend ruime en goed onderhouden woning met een zeer royaal perceel, mede dankzij de voortuin met stenen berging, en een zonnige achtertuin.
De tuin is een waar paradijs voor tuinliefhebbers en gezinnen. Hier geniet u van privacy, groen en ruimte – iets wat zeldzaam is op deze locatie.
De woning is aan de buitenzijde voorzien van onderhoudsarme Keralit gevelbekleding en beschikt op alle etages over kunststof kozijnen met HR++ glas (2018).
Energielabel c.
________________________________________
INDELING
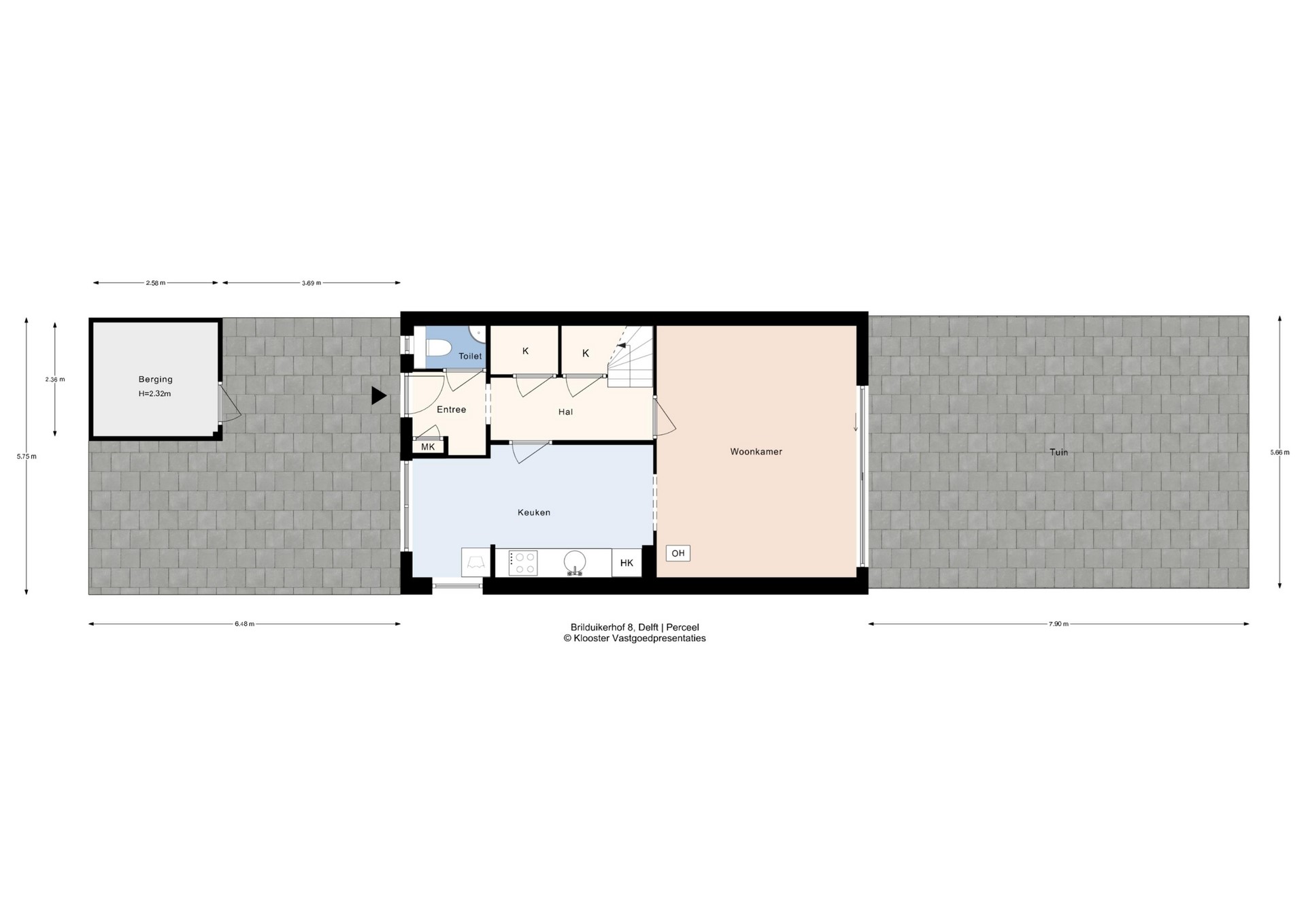
Begane grond
Entree/hal met meterkast (4 groepen, fornuisgroep en 1 aardlekschakelaar), garderobe en een moderne toiletruimte met hangend closet en fonteintje.
Praktische berging met wasmachine- en drogeraansluiting en wastafel, alsmede een trapkast/voorraadkast.
De open keuken bevindt zich aan de straatzijde en is uitgerust met diverse inbouwapparatuur, waaronder een inductiekookplaat, oven, afzuigkap, koelkast en vriezer. De woonkamer aan de tuinzijde is heerlijk licht, voorzien van een laminaatvloer en een sfeervolle houtkachel, en biedt direct contact met de tuin.
Eerste etage
Overloop met lamelparket.
Drie goed bemeten slaapkamers:
• Slaapkamer 1 aan de achterzijde
• Slaapkamer 2 aan de achterzijde met wastafel
• Slaapkamer 3 aan de voorzijde met grote inbouw garderobekast
De badkamer is compleet uitgevoerd met een ligbad met jacuzzi, douchecabine, hangend closet en wastafelmeubel.
Tweede etage
Vliering/bergzolder met opstelplaats voor de Remeha CV-ketel (bouwjaar 2008).
________________________________________
Buitenruimte
De woning beschikt over een voortuin en achtertuin en biedt, door een ruim perceel grond en een sloot naast de woning (in bezit van de gemeente Delft), veel privacy!
________________________________________
Bereikbaarheid
Goede verbinding naar uitvalswegen N470, A-13 en A-4. Halte tramlijn 1 naar centrum Delft op korte loopafstand. Station Delft in de nabijheid van de woning. Veel gratis parkeergelegenheid.
________________________________________
Kortom:
Een ideale gezinswoning met veel leefruimte, een uitzonderlijk grote en groene buitenruimte en een fijne ligging in Delft. Zeker een bezichtiging waard!
DISCLAIMER
De informatie over deze woning is uitsluitend bedoeld voor algemene informatieve doeleinden. Prinsenstad Makelaardij aanvaardt geen verantwoordelijkheid voor fouten of omissies in de inhoud hiervan of voor acties die worden ondernomen op basis van de verstrekte informatie.
Aan een rustig hofje in Delft ligt deze verrassend ruime en goed onderhouden woning met een zeer royaal perceel, mede dankzij de voortuin met stenen berging, en een zonnige achtertuin.
De tuin is een waar paradijs voor tuinliefhebbers en gezinnen. Hier geniet u van privacy, groen en ruimte – iets wat zeldzaam is op deze locatie.
De woning is aan de buitenzijde voorzien van onderhoudsarme Keralit gevelbekleding en beschikt op alle etages over kunststof kozijnen met HR++ glas (2018).
Energielabel c.
________________________________________
INDELING
Begane grond
Entree/hal met meterkast (4 groepen, fornuisgroep en 1 aardlekschakelaar), garderobe en een moderne toiletruimte met hangend closet en fonteintje.
Praktische berging met wasmachine- en drogeraansluiting en wastafel, alsmede een trapkast/voorraadkast.
De open keuken bevindt zich aan de straatzijde en is uitgerust met diverse inbouwapparatuur, waaronder een inductiekookplaat, oven, afzuigkap, koelkast en vriezer. De woonkamer aan de tuinzijde is heerlijk licht, voorzien van een laminaatvloer en een sfeervolle houtkachel, en biedt direct contact met de tuin.
Eerste etage
Overloop met lamelparket.
Drie goed bemeten slaapkamers:
• Slaapkamer 1 aan de achterzijde
• Slaapkamer 2 aan de achterzijde met wastafel
• Slaapkamer 3 aan de voorzijde met grote inbouw garderobekast
De badkamer is compleet uitgevoerd met een ligbad met jacuzzi, douchecabine, hangend closet en wastafelmeubel.
Tweede etage
Vliering/bergzolder met opstelplaats voor de Remeha CV-ketel (bouwjaar 2008).
________________________________________
Buitenruimte
De woning beschikt over een voortuin en achtertuin en biedt, door een ruim perceel grond en een sloot naast de woning (in bezit van de gemeente Delft), veel privacy!
________________________________________
Bereikbaarheid
Goede verbinding naar uitvalswegen N470, A-13 en A-4. Halte tramlijn 1 naar centrum Delft op korte loopafstand. Station Delft in de nabijheid van de woning. Veel gratis parkeergelegenheid.
________________________________________
Kortom:
Een ideale gezinswoning met veel leefruimte, een uitzonderlijk grote en groene buitenruimte en een fijne ligging in Delft. Zeker een bezichtiging waard!
DISCLAIMER
De informatie over deze woning is uitsluitend bedoeld voor algemene informatieve doeleinden. Prinsenstad Makelaardij aanvaardt geen verantwoordelijkheid voor fouten of omissies in de inhoud hiervan of voor acties die worden ondernomen op basis van de verstrekte informatie.