Beschrijving

Modern All-electric 3 kamer appartement in het project ‘Guldenwater’.

Dit woongebouw in Nieuw Delft is door Ballast Nedam opgeleverd in 2020 en bestaat uit 177 fraaie appartementen en 7 royale parkwoningen, gelegen aan de Ireneboulevard, het Van Leeuwenhoekpark en de Nieuwe Gracht.

Entree begane grond:
Portiek met bellentableau en brievenbussen. 2x Lift en trappenhuis naar etage 7. Via besloten galerij met uitzicht op fraaie binnentuin, het Westerkwartier en de kerk in de Raamstraat, bereikt u het moderne appartement op de 7e etage.

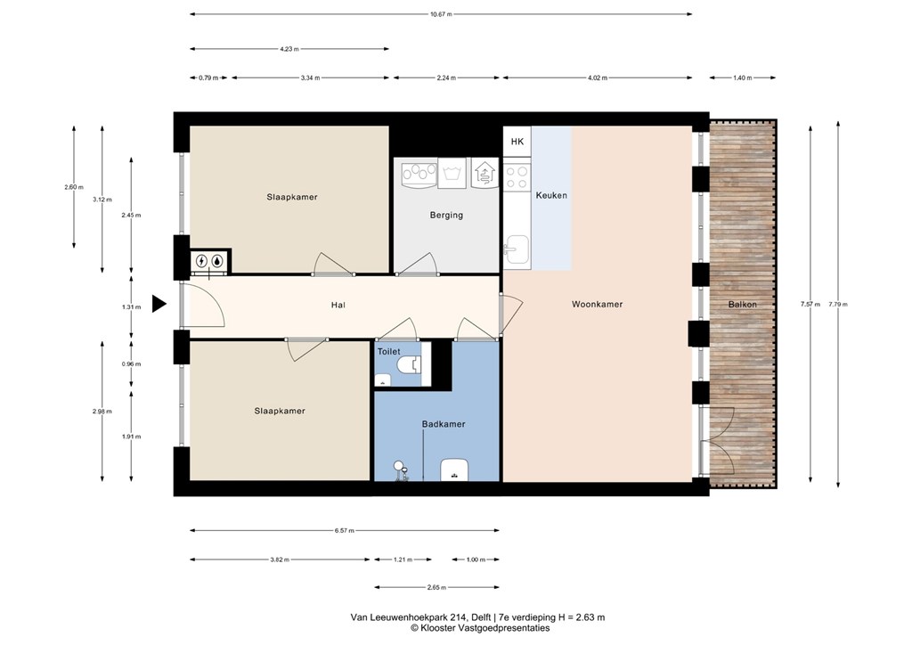
Indeling woning:
Entree via voordeur naar gang. 
Pvc vloeren in de woongedeeltes. 
Plafonds en muren voorzien van wit spack spuitwerk.
Meterkast met 8 groepen, aparte kookgroep en 3x aardlekschakelaar.

2 x ruime slaapkamer aan galerij noordzijde.
Separaat toilet met hangend closet en fonteintje. Halfhoog betegeld.
Badkamer met Inloopdouche, wastafel en handdoekradiator. Betegeld tot aan plafond.
Technische ruimte met warmte-unit, boiler, (150 liter) warmteterugwinning installatie en aansluiting voor wasmachine en droger.
Ruime woonkamer gericht op het zuiden met open keuken voorzien van inbouwapparatuur: inductiekookplaat, recirculatieafzuigkap, combimagnetronoven, vaatwasser en koelkast. 
Dubbele deur naar zonnig balkon met uitzicht op de Irene boulevard en de wijk Delftzicht. 

Berging in de onderbouw op de 1e (bel)etage met lift en trap bereikbaar. 

In directe nabijheid van hoogwaardig openbaar vervoer, stadspark, horecagelegenheden, filmhuis (opening Q1 2026) en de historische binnenstad van Delft.

Kenmerken:
Bouwjaar 2020
Gebruikersoppervlakte wonen 79m2
Balkon 10.90 m2
Berging 5,70 m2
Inhoud 260 m3
All-electric appartement
Warmtepomp voor vloerverwarming en -koeling
Boiler warm water 150 liter
Energielabel A
Huur warmtepomp, boilervat, WTW en zonnepanelen € 116, 67 per maand
Actieve en financieel gezonde VVE. Maandelijkse bijdrage € 131,49
Niet-zelf bewoningclausule van toepassing
Per direct beschikbaar

Kenmerken