Prijs | € 475.000,- k.k. |
Type object | Appartement, maisonnette |
Woonoppervlakte | 114 m² |
Aanvaarding | In overleg |
Status | Verkocht |
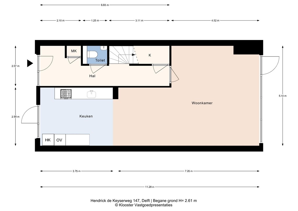
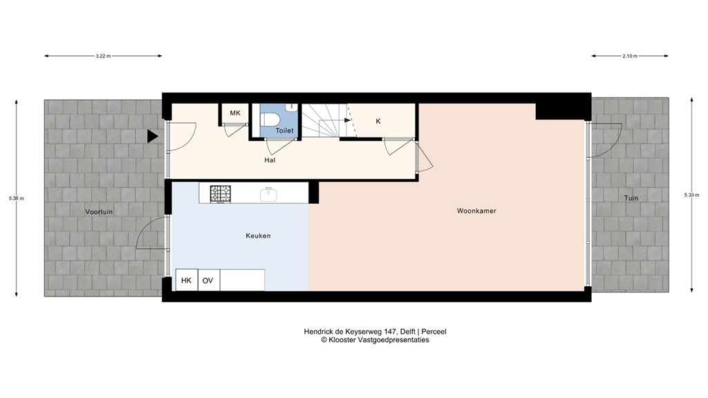
Ruime 4-kamer maisonnettewoning op de begane grond en eerste etage, welke in 2025 inpandig is gerenoveerd. De woning is gelegen op loopafstand van het historisch centrum van Delft, in een gezellige buurt en straat en ligt dicht bij het natuurgebied Delftse Hout. De woning beschikt over een woonkamer met een moderne open keuken, zowel een zonnige voortuin als een achtertuin aan het water, drie slaapkamers, een badkamer en een ruime stook-/wasruimte en eigen fietsenberging. Tot slot is er een goede situering ten opzichte van de uitvalswegen en het openbaar vervoer. Indeling woning: Begane grond: Zonnige betegelde voortuin, entree appartement met ruime gang, toilet, uitgebreide meterkast, trapopgang naar 1e verdieping met daaronder een praktische trapkast. Modern toilet met fonteintje. Woonkamer welke toegang biedt tot het terras aan de achterzijde. Open keuken uit 2025 aan de voorzijde welke is voorzien van een granito aanrechtblad, een inductie kookplaat met ingebouwde afzuigunit, een vaatwasser en dubbel oven en koelkast en vriezer. Vanuit de keuken is het zonnige terras aan de voorzijde te bereiken. 1e verdieping: Overloop met een grote en kleinere slaapkamer aan de voorzijde van de woning. De grote slaapkamer is voorzien van een frans balkon. Aan de achterzijde bevindt zich de grootste slaapkamer en een ruime berging met de aansluiting voor de wasmachine/droger en de opstelplaats van de Remeha CV combiketel (2020). Ruime moderne badkamer met inloopdouche, toilet, wastafelmeubel en handdoekradiator. Kenmerken: - Bouwjaar 2006 - Woonoppervlakte 114 m2 - Inhoud 395 m3 - Renovatie keuken, badkamer, toilet, vloeren en binnen schilderwerk in 2025 - Actieve VVE, bijdrage € 171,38 per maand - Verwarming en warm water middels Remeha Cv-combiketel uit 2020 - Gelegen op eigen grond - Eigen fietsenberging in de onderbouw van het appartementencomplex - Energielabel A - Direct beschikbaar
Referentienummer | 00205 |
Vraagprijs | € 475.000,- k.k. |
Servicekosten | € 171,38 |
Elektra | € 56,- |
Gas | € 136,- |
Water | € 21,- |
Inrichting | Ja |
Inrichting | Gestoffeerd |
Status | Verkocht |
Aanvaarding | In overleg |
Aangeboden sinds | Maandag 26 mei 2025 |
Laatste wijziging | Woensdag 27 augustus 2025 |
Type object | Appartement, maisonnette |
Woonlaag | 1e woonlaag |
Soort bouw | Bestaande bouw |
Bouwperiode | 2006 |
Dakbedekking | Bitumen |
Type dak | Platdak |
Isolatievormen | Volledig geïsoleerd |
Woonoppervlakte | 114 m² |
Woonkameroppervlakte | 37,32 m² |
Keukenoppervlakte | 11,21 m² |
Inhoud | 395 m³ |
Oppervlakte externe bergruimte | 3,4 m² |
Aantal bouwlagen | 2 |
Aantal kamers | 4 (waarvan 3 slaapkamers) |
Aantal badkamers | 1 (en 1 apart toilet) |
Ligging | Aan drukke weg Aan rustige weg Aan water Dichtbij openbaar vervoer Nabij snelweg |
Type | Achtertuin |
Oriëntering | Noord-oost |
Staat | Verwaarloosd |
Tuin 2 - Type | Achtertuin |
Tuin 2 - Hoofdtuin | Ja |
Tuin 2 - Staat | Normaal |
Energielabel | A |
CV ketel | Remeha |
Warmtebron | Gas |
Bouwjaar | 2020 |
Combiketel | Ja |
Eigendom | Eigendom |
Warm water | CV-ketel |
Verwarmingssysteem | Centrale verwarming |
Ventilatie methode | Mechanische ventilatie Natuurlijke ventilatie |
Keukenvoorzieningen | Inbouwapparatuur |
Badkamervoorzieningen | Inloopdouche Toilet Wastafelmeubel |
Heeft een frans balkon | Ja |
Glasvezelaansluiting aanwezig | Ja |
Tuin aanwezig | Ja |
Beschikt over een internetverbinding | Ja |
Heeft schuur/berging | Ja |
Heeft ventilatie | Ja |
Ingeschreven bij de KvK | Ja |
Jaarlijkse vergadering | Ja |
Periodieke bijdrage | Ja |
Reservefonds | Ja |
Meer jaren onderhoudsplan | Ja |
Onderhoudsverwachting | Ja |
Opstal verzekering | Ja |
Kadastrale aanduiding | Delft P 1943 |
Omvang | Appartementsrecht of complex |
Eigendomsituatie | Eigen grond |